推荐产品

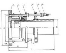
VSSJA-1双法兰松套限位伸缩接头

2018-02-07 13:14:00 来源:本站 浏览:4530

序号

名称

数量

材料

1

本体

1

QT400-15、Q235A、ZG230-450、20

2

密封圈

1

NBR

3

压盖

1

QT400-15、Q235A、ZG230-450、20

4

限位短管

1

Q235A、20、16Mn

5

螺母

4n

Q235A、20、1Cr18Ni9Ti

6

长螺柱

n

Q235A、35、1Cr18Ni9Ti

7

螺柱

n

Q235A、35、1Cr18Ni9Ti

安装数据表: 单位:mm

公称通径
DN

管子外径Dw

外形尺寸

伸缩量

法兰连接尺寸

L

L1

0.6MPa

1.0MPa

D

D1

n-d。

D

D1

n-d。

65

76

340

105

50

160

130

4-¢14

185

145

4-¢18

80

89

190

150

4-¢18

200

160

8-¢18

100

108

210

170

220

180

114

125

133

240

200

8-¢18

250

210

140

150

159

265

225

285

240

8-¢22

168

200

219

320

280

340

295

250

273

370

335

12-¢18

395

350

12-¢22

300

325

350

130

65

440

395

12-¢22

445

400

350

377

490

445

505

460

16-¢22

400

426

540

495

16-¢22

565

515

16-¢26

450

480

595

550

615

565

20-¢26

500

530

645

600

20-¢22

670

620

600

630

755

705

20-¢26

780

725

20-¢30

700

720

860

810

24-¢26

895

840

24-¢30

800

820

590

220

130

975

920

24-¢30

1015

950

24-¢33

900

920

1075

1020

1115

1015

28-¢33

1000

1020

1175

1120

28-¢30

1230

1160

28-¢36

1200

1220

1405

1340

32-¢33

1455

1380

32-¢40

1400

1420

1630

1560

36-¢36

1675

1590

36-¢42

1500

1520

1730

1660

-

-

-

1600

1620

1830

1760

40-¢36

1915

1820

40-¢48

1800

1820

2045

1970

44-¢40

2115

2020

44-¢48

2000

2020

2265

2180

48-¢42

2325

2230

48-¢48


安装简要说明:VSSJA-1型法兰式限位伸缩接头适用于一边与法兰连接,一边与管道焊接,单法兰限位伸缩接头在安装时调整产品两端与管道或法兰的安装长度,对角依次均匀拧紧压盖螺栓,再调整好限位螺母,这样就能让管道在伸缩量范围内可以自由伸缩,锁定伸缩量,确保管道的安全运行。


下一篇:VSSJAFC(CC2F)型可拆式双法兰松套传力接头